Luegisland
Die Siedlung Luegisland setzt sich aus einer Vielzahl von Häusern verschiedener Etappen zusammen, angefangen von Altbauten aus dem Jahre 1952 bis zur im Jahre 1998 renovierten und umgebauten Alterssiedlung. Ein Teil der Altbauten südlich und nördlich der Luegislandstrasse wurden 2013 und 2018 durch die Neubauten Luegisland Süd und Nord ersetzt.
Luegislandstrasse 537, 540, 565-569, 576
Roswiesenstrasse 176/178 (Alterssiedlung)
8051 Zürich
Google Maps
Siedlungsumfang
- Typ MFH
- Wohnungen gesamt 118
- 2-Zimmer-Wohnungen 10
- 2.5-Zimmer-Wohnungen 41
- 3-Zimmer-Wohnungen 35
- 3.5-Zimmer-Wohnungen 25
- 4-Zimmer-Wohnungen 1
- 4.5-Zimmer-Wohnungen 6
- Büro 1
- Parkplätze unterflur 50
- Parkplätze Motorrad 2
- Kindergarten 1
- Werkstätte 1
- Bastelräume 9
Wegzeiten (in Gehminuten)
- Bahnhof Stettbach 25'
- Zentrum Schwamendingen 8'
- ÖV (Tram 9/Bus 94)
- Einkaufszentrum Glatt 15'
- Kindergarten 2'
- Primarschule 5'
- Sekundarschule 10'
Kosten
- Mietzins inkl. NK 700–1'600 Fr.
- Anteilscheine 5'000–8'000 Fr.
Weitere Infos
-
Die Grundrisse sind sehr unterschiedlich und variieren von 55 m2 bis 92 m2. Ein Teil der Alterswohnungen ist subventioniert in der Kategorie I. Die Mietpreise schwanken deshalb je nach Grösse und Kategorie.
Kontakt
-
Herr Andreas Hönger
Luegislandstrasse 530/402
Mail
Virtuelle Rundgänge
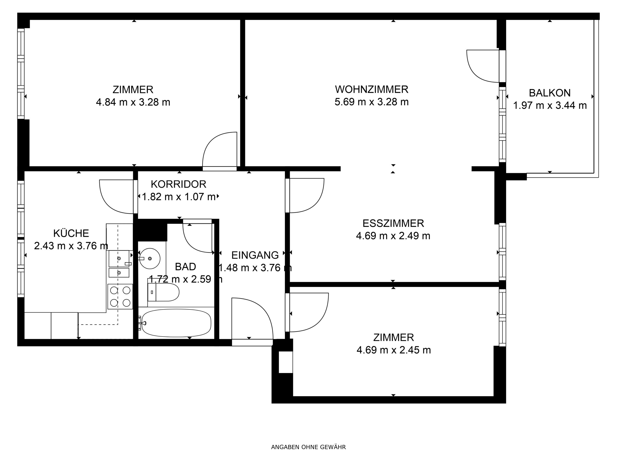
- 3 Zimmer Luegislandstr. 537/540/576, Typ B
- 2.5 Zimmer Luegislandstr. 537/540/576, Typ E
- 2.5 Zimmer Luegislandstr. 537/540/576, Typ F
- 2.5 Zimmer Luegislandstr. 537/540/576, Typ K
- 2.5 Zimmer Luegislandstr. 537/540/576, Typ L
- 2 Zimmer Luegislandstr. 537/540/576
- 2.5 Zimmer Roswiesenstr. 176/178
- 2.5 Zimmer Roswiesenstr. 176/178, off. Küche
- 3.5 Zimmer Luegislandstr. 565-569
- 4.5 Zimmer Luegislandstr. 565-569